alakerran wc
eteistä
alakerran wc
eteistä
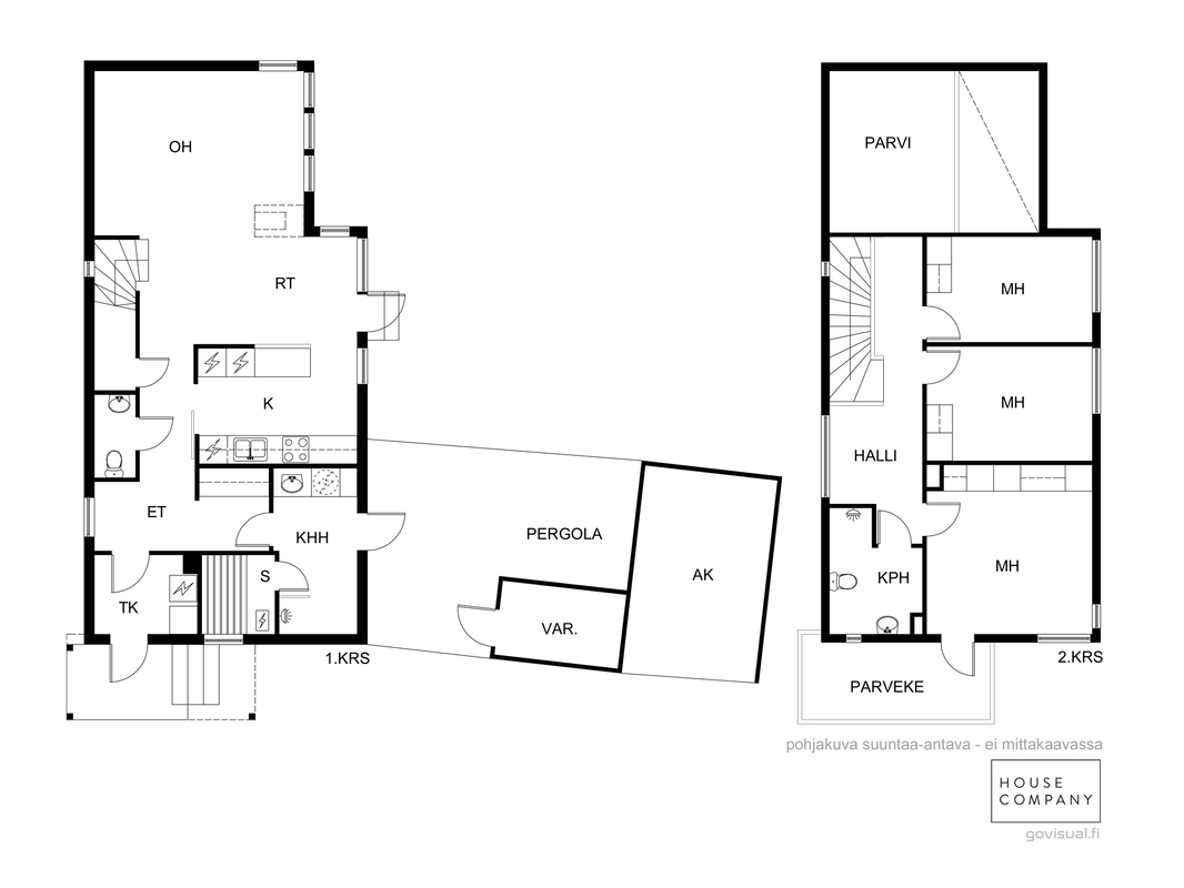
Erillistalo 4h+k+s+ var+ak
Messinkitie 2, Kuurinniitty, Espoo
Hinta
443 000 €
Koko
116 m² / 127 m²
Vuosi
2004
Kiva pohja, ihana piha, kahdessa tasossa perheasunto halutussa yhtiössä.
Tässä kodissa avoimen oleskelutilan kruunaa korkeat isot ikkunat vehreälle pihalle. Keittiö on puoliksi avoin ruokailutilaan ja halutessa seinäkkeen voi poistaa ja korvata vaikka isommalla saarekkeella. Sekä ruokailutilasta että saunaosastosta pääsee aurinkoiselle etelän puoleiselle terassille. Osa terassista on lasitettu ja toimii ihanana kesähuoneena ja saunasta vilvoitteluun. Yläkerrassa on kolme makuuhuonetta ja monikäyttöinen parvi, joka voi toimia jopa neljäntenä maakuu-/työhuoneena.
Yläkerrassa on myös kylpyhuone ja päämakuuhuoneesta käynti ilta-aurinkoparvekkeelle.
Käytännöllinen koti useammankin lapsen kanssa, alakerran tilava pesuhuone saunan yhteydessä tarjoaa myös hyvän tilan pyykinkäsittelyyn ja ulko-ovi mahdollistaa kuraeteisenä toimimisen.
Asunnossa on hyvät säilytystilat sisällä ja lisäksi ulkovarasto. Auton saa katokseen aivan oven viereen, mikä helpottaa arkea ja lisäki pari autoa mahtuu peräkkäin katoksen päätyyn.
Pihassa on kauniit istutukset jotka antavat hyvän näkösuojan kesällä ja vieressä on yhtiön nurmikenttä jossa perheen pienimmät voivat vaikka pelata futista.
Lapsiperheiden suosima rauhallinen alue. Kivat ulkoilumaastot ja Espoon keskuspuisto lähellä.
Viereiseltä pysäkiltä menee suora bussi Tapiolaan metrolle ja lähikauppakin on kävelyetäisyydellä.
Tervetuloa esittelyyn!
Myynti ja esittelyvaraukset: Susanna Ranne 050 538 6769 / susanna.ranne@housecompany.fi
| Kohdenumero | 21303538 |
|---|---|
| Sijainti | Messinkitie 2, 02750 Espoo |
| Omistusmuoto | Oma |
| Huoneistoselitelmä | 4h+k+s+ var+ak |
| Huoneita | 4 h |
| Hallintamuoto | Asunto-osakeyhtiö |
| Tyyppi | Erillistalo (osake) |
| Asuintilojen pinta-ala | 116 m² |
| Pinta-alojen lisätiedot | muut tilat n. 11 m2 on parvi |
| Kerros | 1/2 |
| Vapautuminen | sopimuksen mukaan |
| Kunto | Hyvä/tyydyttävä |
| Kohteen kunto | Hyvä |
| Energialuokka | F2013. |
| Rakennusvuosi | 2004 |
| Käyttöönottovuosi | 2004 |
| Velaton hinta | 443 000 € |
|---|---|
| Myyntihinta | 443 000 € |
| Velkaosuus | - |
| Vuokrattu | Ei |
| Vastikkeet | |
|---|---|
| Huoneiston yhtiövastike yht | 324,80 € / kk |
| Hoitovastike | 324,80 € / kk |
| Vesimaksu | 13 € / kk henkilöluvun mukaan |
|---|---|
| Muut maksut | Vesimaksuennakko 13 eur/hlö/kk tasataan kulutuksen mukaan. |
| Lämmitys | Sähkö. |
|---|---|
| Lämmitysmuodot |
|
| Oma sauna | Kyllä |
| Parveke | Kyllä |
| Antennijärjestelmä | Kaapeli-tv |
| Palvelut | |
|---|---|
| Päiväkoti | Pilke luontopäiväkoti 1,3 km, Tuomarilan päiväkoti 2 km |
| Koulu | Ymmerstan koulu ( lähikoulu) 1,3 km Tuomarilan koulu 2 km |
| Palvelut | K-Market Kuurinniitty 700 m, Alepa Tuomarila 1,3 km |
| Liikenneyhteydet | |
|---|---|
| Liikenneyhteydet | Tuomarilan juna-asema 2,4 km Bussit: 224 kauniaisten suuntaan, 23 Koivuhovin asemalle, 118 Tapiolaan (pysäkki vieressä ja nopea yhteys metrolle) |
| Muut säilytystilat |
|
|---|---|
| Muu varustelu |
|
| Tulisija |
|
| Katto | |
|---|---|
| Kate | tiilikate, peltikate |
| Rakennusmateriaalit | |
|---|---|
| Käytetyt rakennusmateriaalit |
|
| Keittiö | |
|---|---|
| Keittiön pöydät |
|
| Keittiön muu varustelu |
|
| Liesi |
|
| Jääkaappi ja pakastin |
|
| Keittiön lattia |
|
| Keittiön seinät |
|
| Kylpyhuone | |
|---|---|
| Kylpyhuoneen varustelu |
|
| Kylpyhuoneen lattia |
|
| Kylpyhuoneen seinät |
|
| Sauna | |
|---|---|
| Kiuas |
|
| Saunan lattia |
|
| Saunan seinät |
|
| Makuuhuone | |
|---|---|
| 3 | |
| Makuuhuoneen lattia |
|
| Makuuhuoneen seinät |
|
| Parveke | |
|---|---|
| Parveke |
|
| Parvekkeen suunta |
|
| Olohuone | |
|---|---|
| Olohuoneen lattia |
|
| Olohuoneen seinät |
|
| WC-tilat | |
|---|---|
| WC-tilojen lattia |
|
| WC-tilojen seinät |
|
| Koko | 9 749 m² |
|---|---|
| Omistus | Oma |
| Kaavoitustilanne |
|
| Nimi | As. Oy Espoon Messinkimetsä |
|---|---|
| Isännöitsijän tiedot | Reim Pääkaupunkiseutu / Reim Espoo Jarkko Hukkanen 010 5437 260 jarkko.hukkanen@reim.fi |
| Huolto | Skipa Kiinteistöpalvelut Oy |
| Tehdyt remontit | 2009 parvekkeiden ja pergoloiden puuosien huoltomaalaus 2011 kattojen tarkastus runsaslumisen talven jälkeen, rikkoutuneiden kattotiilien uusiminen ja rakennusten J ja K talotikkaiden uusiminen 2012 vesikattojen tarkastus ja rikkoutuneiden kattotiilien uusiminen, rakennusten ulkomaalaustarpeen kartoitus 2013 julkisivujen levyverhouksen huoltomaalaus, kaikkien rakennusten maalattujen julkisivujen huoltomaalauksen valmistelu, lisälumiesteiden asentaminen rakennuksiin A,B, C, D, F ja G 2014 rakennusten julkisivujen puuverhouksen huoltomaalaus 2015 ilmanvaihtojärjestelmän puhdistus, ilmamäärien mittaus ja säätö, suodattimien vaihto ja IV-koneiden toiminnan tarkastus, TV:n HD-kanavien katselun edellyttämän antennikeskuksen uusiminen yhdessä As. Oy Espoon Messinkikallion kanssa, leikkipaikan hiekan vaihto 2016 märkätilojen silikonisaumausten uusiminen tarvittavassa laajuudessa kaikissa asunnoissa, parvekelattioiden rakenteiden tiivistäminen ja osittainen uusiminen, julkisivun puuverhouksen yksittäisten lautojen uusiminen 2017 julkisivujen puuverhouksen huoltomaalauksen viimeistely ja takuukorjaukset, vesikattojen tarkastus ja rikkoutuneiden tiilien vaihtaminen, räystäskourujen puhdistus, parvekkeiden maalauskunnostus v.2016 uusittujen puuosien osalta, salaojien korkeapainehuuhtelu 2018 vesijohtojen saattolämmityksen tiiveydt tarkastettu. Yhtiö liitetty Fiksutveden vedentarkkailujärjestelmään. Aluskatteita tarkastettu. Pergoloiden ja parvekkeiden lattiarakenteita kunnostettu. Vesikattojen tarkastaminen ja rikkoutuneiden tiilien uusiminen vuosittain, räystäskourujen puhdistus. 2019 parvekerakenteiden ja pergoloiden lahovaurioiden korjauksia 2020 parvekkeiden ja pergoloiden korjauksia 2022 ikkunoiden huoltoa 2023 B-talon istutuslaatikon korjaus 2024 kosteiden tilojen silikonisaumojen uusiminen 2025 yhtiesvastuullinen maanpainumakorjaus lämmönjakohuoneen kohdalla, As. Oy Messinkikallion kanssa |
| Tulevat remontit | 2025 viemäreiden huuhtelu, lämminvesivaraajien uusiminen tarvittaessa, IV-kanavien nuohous ja säätö, taloyhtiön vastuulla olevat palovaroittimet 60 m2 - 1 kpl, yli 60 m2- 2 kpl |
| Taloyhtiön autopaikat |
|
| Huoneistojen lukumäärä | 16 |
| Taloyhtiössä |
|
| Nimi | Ranne Susanna |
|---|---|
| Sähköposti | susanna.ranne@housecompany.fi |
| Puhelin | 050 538 6769 |
| Yrityksen nimi | House Company LKV Oy |
| Toimiston nimi | House Company LKV Oy |
| Yrityksen nimi | House Company LKV Oy |
|---|---|
| Toimiston nimi | House Company LKV Oy |
| Osoite | Vironkatu 3, Helsinki |
| Toimiston puhelin | 050 538 6769 |
| Toimiston sähköposti | susanna.ranne@housecompany.fi |