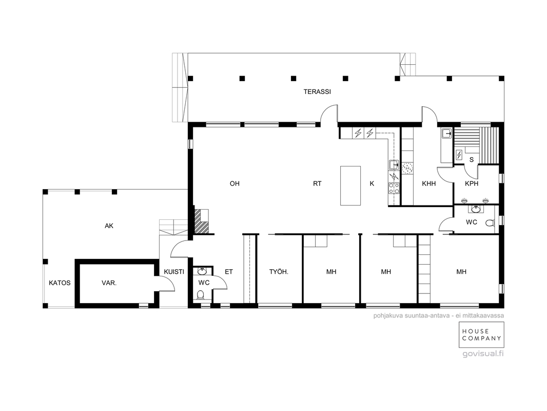
Omakotitalo 5h+avok.+khh+kph+s+2xwc+var.+ak
Nummitie 12B, Laaksolahti, Espoo
Hinta
699 000 €
Koko
142 m² / 150 m²
Vuosi
2017
Moderni hirsitalo yhdessä tasossa.
Tässä kodissa yhdistyvät arjen sujuvuus ja estetiikka. Iso avokeittiö-olohuone on monen perheen mieleen ja pienemmät makuuhuoneet aukeavat tähän. Pienten lasten kanssa helppoa elämää, keittiöstä näkee mitä tapahtuu ja lisäksi auton saa oven eteen autokatokseen. Olohuoneesta on käynti isolle katetulle terasille ja saunaosastosta/kodinhoitohuoneesta pääsee myös terassille.
Tämä selkeä pohja ja yksitasoisuus sopii moneen elämänvaiheeseen.
Makuuhuoneita on yhteensä 4. Isoin päämakuuhuone sijaitsee talon rauhallisimmassa kulmassa lähellä peseytymistiloja. Moderni talo on energiatehokas ja lämpiää maalämmöllä. Koko talossa on vesikiertoinen lattialämmitys. Lisäksi järjestelmässä on jäähdytystoiminto kesän helteille. Talvellla tunnelmaa ja lisälämpöä tuo varaavatakka. Talo on valmistunut 2017.
Pihassa on sopivasti tilaa lasten leikeille ja vieressä on Jupperin metsä sekä Pitkäjäeven rantakenttä missä leikkipuisto ja pallokenttä/luistinrata sekä uimaranta. Luonnon läheisyys ja alueen rauhallisuus on vuosikymmeniä tehnyt alueesta hyvin halutun.
Myynti ja esittelyvaraukset: Susanna Ranne 050 538 6769 / susanna.ranne@housecompany.fi
| Kohdenumero | 20656234 |
|---|---|
| Sijainti | Nummitie 12B, 02730 Espoo |
| Huoneistoselitelmä | 5h+avok.+khh+kph+s+2xwc+var.+ak |
| Huoneita | 5 h |
| Tyyppi | Omakotitalo (kiinteistö) |
| Asuintilojen pinta-ala | 142 m² |
| Kerroksia | 1 |
| Vapautuminen | sopimuksen mukaan |
| Kohteen kunto | Hyvä |
| Energialuokka | B2018. |
| Rakennusvuosi | 2017 |
| Velaton hinta | 699 000 € |
|---|---|
| Myyntihinta | 699 000 € |
| Velkaosuus | - |
| Vuokrattu | Ei |
| Muut maksut/lisätietoa maksuista | |
|---|---|
| Kiinteistövero | 1 233 € / vuosi |
| Vesi- ja jätevesimaksu | 51 € / kk |
|---|---|
| Puhtaanapito | 11 € / kk |
| Muut maksut | sähkönkulutus 9567 kWh/v sis. taloussähkön vedenkulutus / 4 hlö |
| Lämmitysmuodot |
|
|---|---|
| Oma sauna | Kyllä |
| Palvelut | |
|---|---|
| Päiväkoti | Jupperin Ankkalampi 1 km Jupperin päiväkoti 1,6 km Laaksolahden päiväkoti 1,6 km Nuumäen päiväkoti 2,4 km Lähderannan päiväkoti (remontissa) 1,3 km Karamalmens daghem 4 km |
| Koulu | Jupperin ala-aste 850 m Lähderannan ala-aste 1,3 km Karakallion yläaste 3 km Viherlaakson yläaste ja lukio 3,4 km Karamalmens skola 4 km |
| Palvelut | S-market, K-Supermarket Lähderanta 1,5 km (lisäksi siellä Alko, R-kioski, Subway, Kotipizza, nepalilainen ravintola, parturi-kampaamo) Jupperin koululla kirjasto ja K-market 1,6 km, lisäksi Alepa Jupperissa 1 km |
| Muut palvelut | isommat kaupunkipalvelut Leppävaaran Sellossa |
| Liikenneyhteydet | |
|---|---|
| Liikenneyhteydet | Hyvät bussiyhteydet 321 suoraan Elielin aukiolle Vihdintien ja Mannerheimintien kautta 214 ja 215 Leppävaaraan ( asemalle) 548 Kauniaisiin (asema) ja Tapiolaan sekä Myyrmäkeen 530 Myyrmäkeen (asemalle) ja Espoon keskukseen |
| Viemäri |
|
|---|---|
| Muut säilytystilat |
|
| Muu varustelu |
|
| Tulisija |
|
| Vesihuolto |
|
| Katto | |
|---|---|
| Kate | Ruukki teräskate, Classic |
| Rakennusmateriaalit | |
|---|---|
| Käytetyt rakennusmateriaalit |
|
| Keittiö | |
|---|---|
| Keittiön muu varustelu |
|
| Liesi |
|
| Jääkaappi ja pakastin |
|
| Keittiön lattia |
|
| Keittiön seinät |
|
| Kylpyhuone | |
|---|---|
| Kylpyhuoneen varustelu |
|
| Kylpyhuoneen lattia |
|
| Kylpyhuoneen seinät |
|
| Sauna | |
|---|---|
| Kiuas |
|
| Saunan lattia |
|
| Saunan seinät |
|
| Makuuhuone | |
|---|---|
| 4 | |
| Makuuhuoneen lattia |
|
| Makuuhuoneen seinät |
|
| Olohuone | |
|---|---|
| Olohuoneen lattia |
|
| Olohuoneen seinät |
|
| Pesutilat | |
|---|---|
| Pesutilojen lattia |
|
| Pesutilojen seinät |
|
| WC-tilat | |
|---|---|
| WC-tilojen lattia |
|
| WC-tilojen seinät |
|
| Rakennusoikeus e-luku | 0.2 |
|---|---|
| Koko | 817 m² |
| Omistus | Oma |
| Kaavoitustilanne |
|
| Kiinteistötunnus | 49-60-147-17 |
| Ranta |
|
| Nimi | Ranne Susanna |
|---|---|
| Sähköposti | susanna.ranne@housecompany.fi |
| Puhelin | 050 538 6769 |
| Yrityksen nimi | House Company LKV Oy |
| Toimiston nimi | House Company LKV Oy |
| Yrityksen nimi | House Company LKV Oy |
|---|---|
| Toimiston nimi | House Company LKV Oy |
| Osoite | Vironkatu 3, Helsinki |
| Toimiston puhelin | 050 538 6769 |
| Toimiston sähköposti | susanna.ranne@housecompany.fi |